ЖК лиговский

квартира 92,45м2, в работу входит дизайн проект, авторский надзор и производство мебели
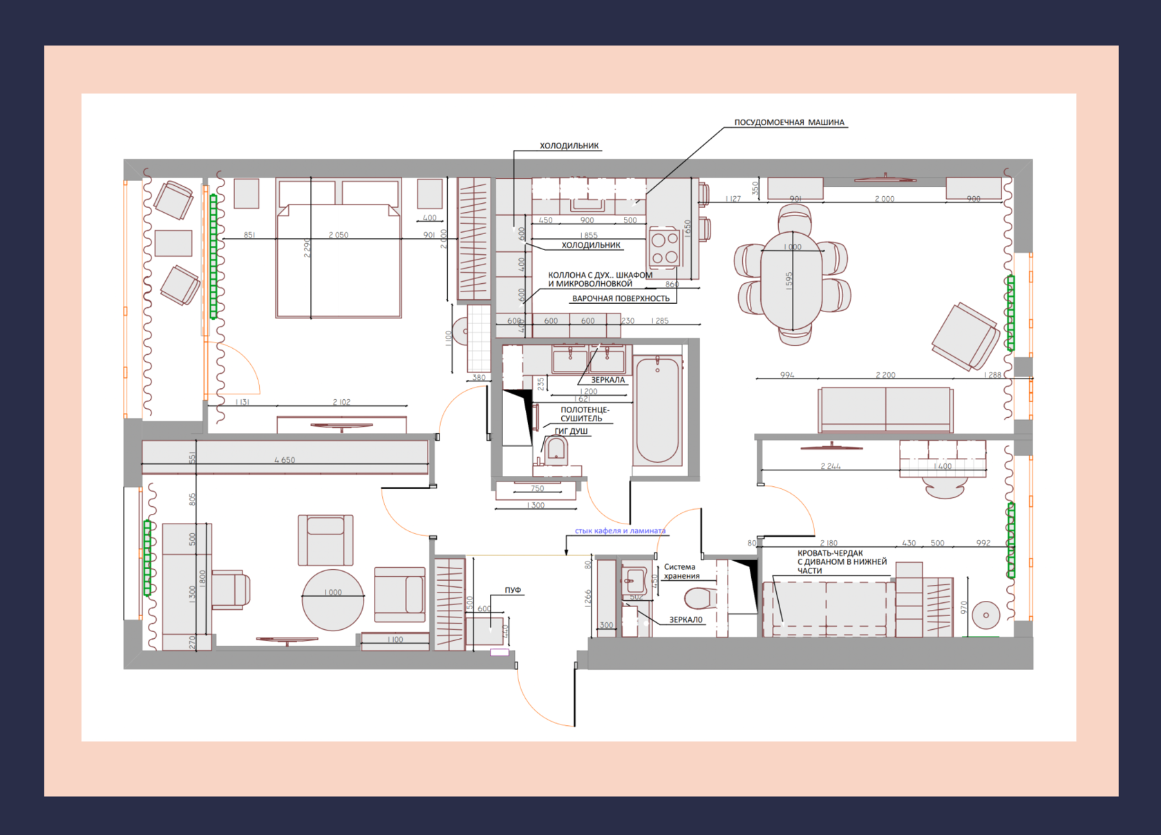
Квартира 92,45 м² для большой семьи
В квартире была изменена и согласована перепланировка. Так как семья большая, мы реализовали просторную гостиную, а кухонную зону разместили в нежилой зоне.
Дизайн проект и планировка трехкомнатной квартиры в ЖК Лиговский
кухня-гостиная
Просторная кухня-гостиная, где зона кухни расположена отдельно, а основную площадь занимает гостиная с обеденной зоной и местом для отдыха, где вся семья может комфортно проводить время.
Спальня
Продумали спальню таким образом, что бы разместить и шкаф и зону тв, при этом оставляя простор в комнате.
Кабинет
Изолированная комната обустроена под рабочий кабинет. При этом в кабинете расположен встроенный вместительный шкаф и уютный диван для отдыха.
Два санузла
В квартире обустроено два санузла для удобства всех членов семьи. В одном из них расположилась просторная ванная.
ДЕТСКАЯ КОМНАТА
Светлая детская комната с пространством для сна и отдыха. Двухъярусная кровать с диваном экономит пространство и позволяет разделить зону сна с зоной отдыха и приемом гостей.
ПРИХОЖАЯ
В прихожей реализованы два шкафа в потолок, пуфик для удобства и зеркало в пол напротив двери, с помощью которого увеличивается пространство.
Made on
Tilda