ЖК Forest

Квартира 62м2 с чистовой отделкой и ремонтом под ключ
Квартира для семьи из двух человек, с пространством для приема гостей
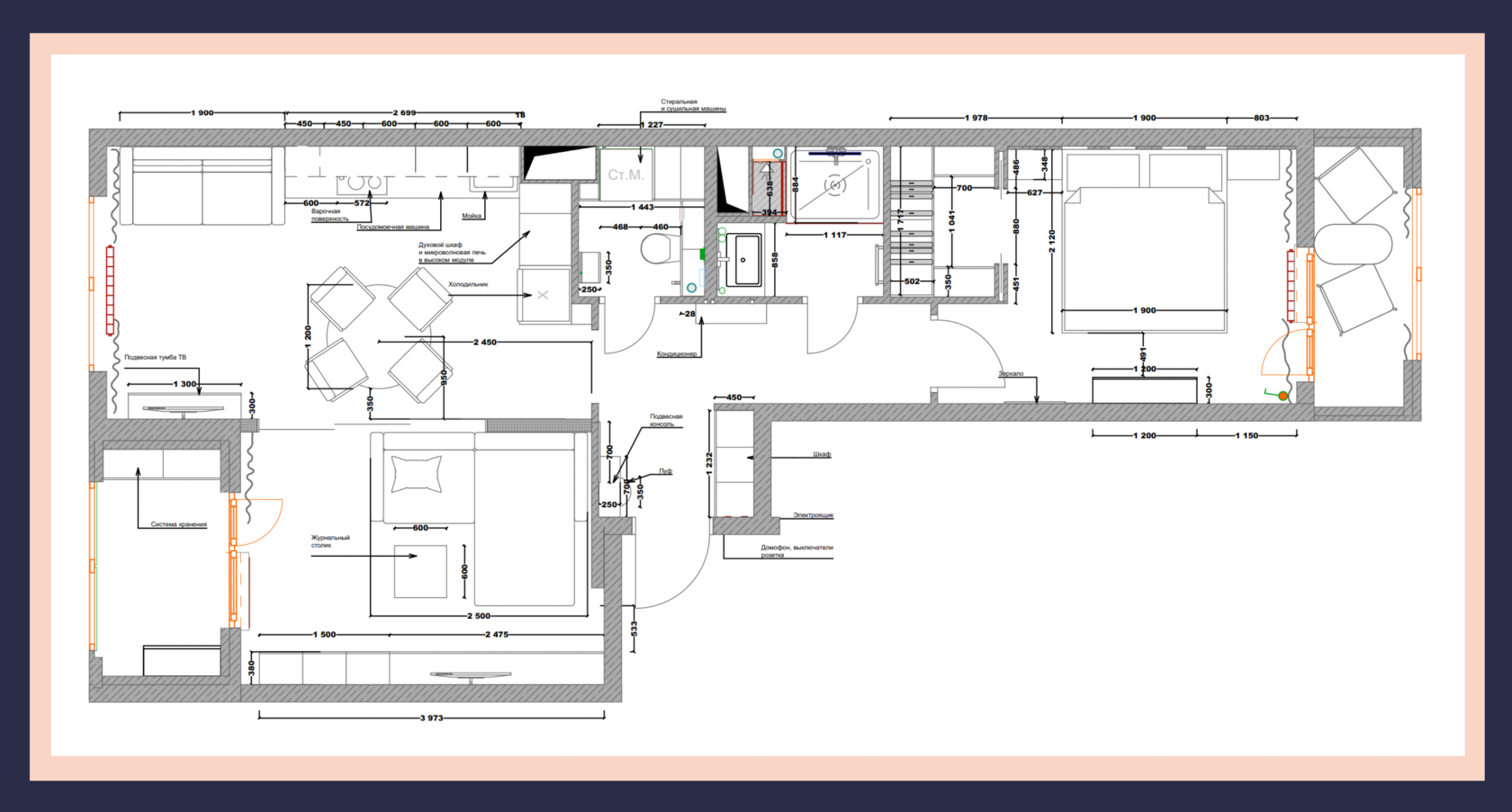
Квартира была принята с чистовой отделкой, наша задача правильно организовать и спланировать пространство с учетом особенностей жизни заказчиков.
Дизайн проект и планировка двухкомнатной квартиры в ЖК Форест
К заказчикам часто приезжают в гости дети и внуки, мы приняли решение сделать перепланировку для того, что бы гостям и заказчикам было комфортно собираться вместе, а гости могли остаться на ночь.
кухня-гостиная
В кухонной зоне была произведена перепланировка. Зона гостиной отделена стеклянной дверью-перегородкой, что позволяет семье собираться вместе в едином пространстве, а при необходимости изолировать зону отдыха для спокойного сна детей и внуков заказчиков.
Спальня с гардеробной
Зона спальни оборудована большой комфортной кроватью и изолированной гардеробной комнатой, где удачно распланировано пространство для хранения вещей.
Прихожая
Небольшая прихожая оборудована зеркалом в пол, что позволяет визуально увеличить пространство.
Два санузла
В квартире реализована идея с двумя санузлами, один санузел оборудован душевой кабиной, второй увеличен за счет площади кухни, в нем размещена зона прачечной.
Дизайн проект санузла в ЖК Форест СПБ
Дизайн проект санузла в ЖК Форест
Made on
Tilda